Quinta do Imperador

Pronto Para Construir

Quinta do Imperador

Respirar ar puro no coração da cidade. Isso é real!

Viver bem é ter tempo para si.

Aqui, você encontra uma área de lazer exclusiva com alternativas para relaxar, cuidar do corpo ou alimentar a alma em boa companhia.

AV. VER. JOSÉ GRANZOTE – FRANCA/SP

GALERIA DE FOTOS


PLANTAS DO PROJETO


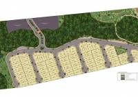
Implantação

ANDAMENTO DA OBRA



LOCALIZAÇÃO

Localização estratégica – morar em um endereço central e estar rodeado de verde é a combinação perfeita para quem procura qualidade de vida. entre as Avenida Ismael Alonso y Alonso e Aanta Cruz, próximo ao Residencial Piratininga, uma localização nobre de franca, a apenas 2,5 km do centro. assim, você cumpre a agenda do dia com agilidade e volta para casa para curtir o pôr do dol e a natureza.

FICHA TÉCNICA

Número de unidades: 83

Descrição das unidades: Loteamento fechado, lotes residenciais com tamanho médio de 515 m²

Área do Terreno: 136.983,23 m²

Áreas Comuns:

Áreas Comuns:

Diferênciais:

Compartilhe:


FALE CONOSCO

(16) 2133-6300

RUA NÉLIO GUIMARÃES, 469

ALTO DA BOA VISTA

RIBEIRÃO PRETO - SP

CEP 14025-290

 

ENTRE EM CONTATO COM A DIRETORIA

 

FALE CONOSCO

VENDA SEU TERRENO

Imagens meramente ilustrativas. Este site usa cookies para garantir que você obtenha a melhor experiência.